Muse+
主頁
居屋裝修
居屋 2025年
啟陽苑啟德 · 約1,840伙 影輝苑將軍澳 · 約1,628伙 匯熙苑錦田 · 約960伙 朗風苑屏山 · 1,870伙 裕豐苑東涌 · 2,018伙
查看 2025年 總覽 →
居屋 2024年
啟盈苑啟德 · 1,736伙 兆湖苑屯門 · 2,768伙 裕興苑東涌 · 1,344伙 高曦苑油塘 · 864伙 安柏苑觀塘 · 420伙
查看 2024年 總覽 →
居屋 2023年
朗天苑元朗 · 3,080伙
查看 2023年 總覽 →
居屋 2022年
昭明苑將軍澳 啟欣苑啟德 裕雅苑東涌 安秀苑觀塘 驥華苑北角 冠山苑土瓜灣 愉德苑沙田
查看 2022年 總覽 →
居屋 2021年
查看 2021 年屋苑資訊
居屋 2020年
查看 2020 年屋苑資訊
綠置居
麗玥苑長沙灣 · GSH 2023 高宏苑油塘 · GSH 2022 錦柏苑馬鞍山 · GSH 2022 清濤苑粉嶺 · GSH 2022 啟鑽苑鑽石山 · GSH 2020/21 盛緻苑九龍灣
綠置居 2020+ 總覽 →
居屋裝修全攻略 →
公屋裝修
馬東邨東涌 · 約5,200伙 東涌第99區東涌 · 約3,300伙 鳳凰嶺邨粉嶺北 · 約6,168伙 古雋邨古洞北 · 約8,000伙 安達臣道公屋觀塘 · 約3,930伙 屯門54區屯門
公屋新屋邨總覽 → 公屋裝修全攻略 →
全屋翻新 作品案例 平面圖 裝修小知識 預約免費度尺
繁 EN 简

公屋居屋平面圖資源庫

免費瀏覽各區公屋及居屋單位平面圖,配合 Muse+ 專業設計團隊為你度身訂造裝修方案。

公屋標準單位Standard Public Housing

公屋標準單位 2-3人開放式 A型 平面圖
2-3人開放式 A型
公屋標準單位 2-3人開放式 B型 平面圖
2-3人開放式 B型
公屋標準單位 3-4人1房 A型 平面圖
3-4人1房 A型
公屋標準單位 3-4人1房 B型 平面圖
3-4人1房 B型
公屋標準單位 3-4人1房 C型 平面圖
3-4人1房 C型
公屋標準單位 4-5人2房 A型 平面圖
4-5人2房 A型
公屋標準單位 4-5人2房 B型 平面圖
4-5人2房 B型
公屋標準單位 5-6人3房 平面圖
5-6人3房

啟盈苑Kai Ying Court

啟盈苑 A型 平面圖
A型
啟盈苑 B型 平面圖
B型

啟悅苑Kai Yuet Court

啟悅苑 A型 平面圖
A型
啟悅苑 B型 平面圖
B型

啟翔苑Kai Cheung Court

啟翔苑 A型 平面圖
A型
啟翔苑 B型 平面圖
B型

彩禾苑Choi Wo Court

彩禾苑 A型 平面圖
A型
彩禾苑 B型 平面圖
B型

錦駿苑Kam Chun Court

錦駿苑 A型 平面圖
A型
錦駿苑 B型 平面圖
B型
錦駿苑 C型 平面圖
C型
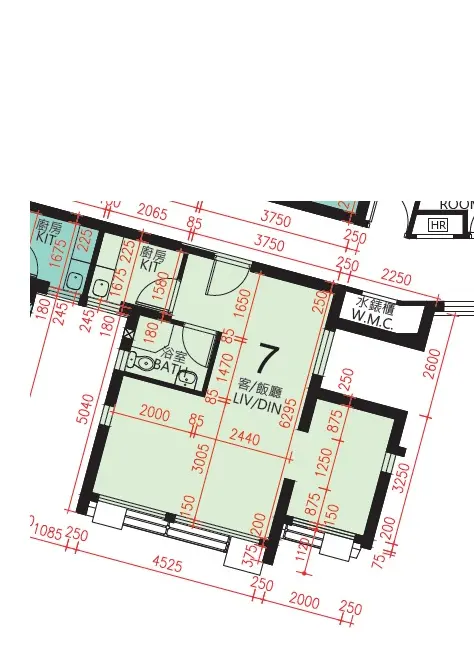
錦駿苑 E型 平面圖
E型
錦駿苑 開放式(無露台)C4/5型 平面圖
開放式(無露台)C4/5型
錦駿苑 1房(有露台)2型 平面圖
1房(有露台)2型
錦駿苑 1房(無露台)15型 平面圖
1房(無露台)15型
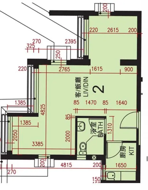
錦駿苑 2房(有露台)10型 平面圖
2房(有露台)10型
錦駿苑 2房(無露台)7型 平面圖
2房(無露台)7型

冠山苑Kwun Shan Court

冠山苑 A型 平面圖
A型
冠山苑 B型 平面圖
B型

驥華苑Kei Wah Court

驥華苑 標準型 平面圖
標準型
驥華苑 3F型 平面圖
3F型

山麗苑Shan Lai Court

山麗苑 A型 平面圖
A型
山麗苑 B型 平面圖
B型
山麗苑 C型 平面圖
C型
山麗苑 D型 平面圖
D型

安來邨On Lai Estate

安來邨 A型 平面圖
A型
安來邨 B型 平面圖
B型
安來邨 2房(無露台)7型 平面圖
2房(無露台)7型
安來邨 2房(無露台)20型 平面圖
2房(無露台)20型

裕泰苑Yu Tai Court

裕泰苑 1房(有露台)10/11型 平面圖
1房(有露台)10/11型

睇完圖則,想開始規劃裝修?

Muse+ 團隊熟悉各大公屋居屋屋苑戶型,為你度身訂造最合適的裝修方案。立即聯絡我們獲取免費初步報價!

WhatsApp 預約免費度尺 →
Muse+

香港高端室內設計公司,專注於為公屋及居屋業主打造實用與美感兼備的理想家居。

快速連結

  • 主頁
  • 居屋裝修全攻略
  • 作品案例
  • 新屋苑專區

熱門指南

  • 公屋裝修全攻略
  • 居屋裝修全攻略
  • 平面圖資源庫
  • 裝修小知識

聯絡我們

  • +852 6443 1186
  • info@www.museplus.design
  • 香港九龍觀塘道398號

© 2026 Muse+ Interior Design. All rights reserved.